ШІ-агент Чемпіон
ШІ друкує

Характеристики

Тип об'єкту: Новобудова
Тип будинку: Житловий фонд від 2021 р.
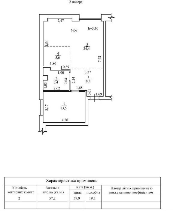
Кімнат: 2
Поверх: 2 з 5
Загальна площа: 57 м²
Площа кухні: 38 м²
Тип стін: Цегляний
Опалення: Індивідуальне електро
Ремонт: Авторський проект
Меблювання: Так
Побутова техніка: Холодильник, Варильна панель, Духова шафа, Пральна машина
Планування: Студія
Комунікації: Асфальтована дорога, Центральна каналізація, Електрика, Центральний водопровід
Інфраструктура: Відділення банку, банкомат, Аптека, Лікарня, поліклініка, Дитячий садок, Ринок, Парк, зелена зона, Дитячий майданчик, Відділення пошти, Ресторан, кафе, Школа, Магазин, кіоск, Супермаркет, ТРЦ, Зупинка транспорту
Назва ЖК: Комфорт Парк
Рік побудови / здачі: 2022
Комфорт: Кондиціонер, Ванна, Ліфт, Підігрів підлоги, Меблі на кухні, Панорамні вікна
Ландшафт (до 1 км.): Парк

Опис

Житловий комплекс "Комфорт-Парк" знаходиться біля скверу Чорновола. Поряд оновлений парк Хіміків, зупинка тролейбуса, банківська академія, Східно-Європейський університет, бізнес-коледж, школа №18. Квартира з новим ремонтом, зовнішнє утеплення стін, панорамні вікна з двокамерними склопакетами, високі стелі 3,10м, електроопалення, 3 фази, теплі підлоги, меблі, вбудована побутова техніка, якісна сантехніка. Квартира повністю готова до проживання! Можливе оформлення квартири під державні іпотечні програми! Шукайте відеоогляд в Ютюбі.
Активно
Опубліковано 15.04.2026

2-кімнатна студія, ЖК Комфорт Парк, Чорновола, 243/А

74 500 $
Черкаси, Хімселище

Схожі оголошення

+38 098 029 03 43 +38 093 029 03 43
×

Вхід адміна