Характеристики

Тип об'єкту: Новобудова
Тип будинку: Житловий фонд від 2021 р.
Кімнат: 3
Поверх: 2 з 3
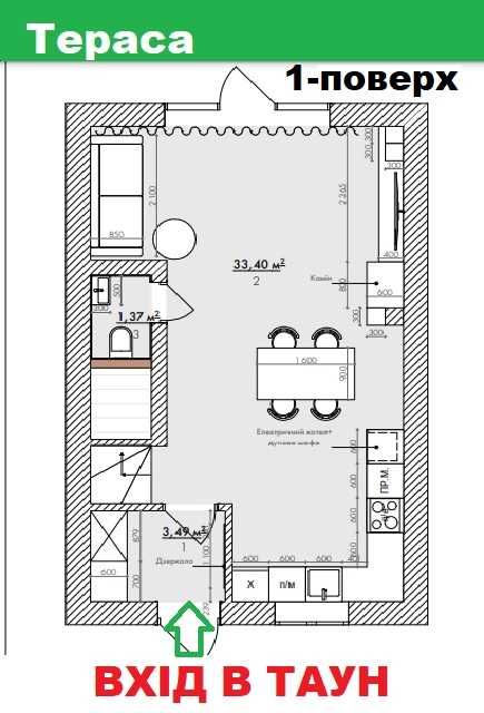
Загальна площа: 101 м²
Площа кухні: 34 м²
Ділянка: сот.
Тип стін: Цегляний
Опалення: Комбіноване
Ремонт: Після будівельників
Меблювання: Ні
Планування: Роздільна
Комунікації: Асфальтована дорога, Центральна каналізація, Електрика, Вивіз відходів, Центральний водопровід

Опис

Продаж готових квартир з паркомісцем і власним двориком! ЖК "Біля Соснового Бору" який вдало розташований в районі Соснівка, по вулиці Дахнівська 10, що біля ресторану "ЕДЕМ"! Таунхаус - це трьох поверхова квартира в закритому комплексі з своєю парковкою та власним заднім двориком для відпочинку. Наш комплекс, а це всього дев'ять таунів, введено в експлуатацію і отримано всі документи на право власності, підключені всі комунікації, а отже купуючи Таун Ви одразу отримуєте ключі від власного будинку! "Купуй Кращє у Кращіх"! Наші переваги: Нуль ризиків! Ми вже збудували весь комплекс і працюємо за усіма іпотечними та державними програмами - ЄОСЕЛЯ! + Унікальне розташування в оточенні соснових дерев! + Відеоспостереження, закрита територія, автоматичні ворота. + Локації для відпочинку, дитячі гойдалки та спортивний майданчик у вас в дворі. + Ландшафтний благоустрій комплексу тротуарна плитка, лавочки, озеленення, заїзд та виїзд окремо. + Центральні комунікації: вода, каналізація, електрика 15 кВа, інтернет Маклаут - вже підключені! + Є власний затишний дворик та парковка з можливістю заряджання електрички або під'єднання генератора. + Кожного сусіда Ви будете знати особисто, тому що в ЖК всього 9 таунів і сусідів Ми підбираємо з увагою на концепцію нашого комплексу, яка полягає в гармонійному проживанні родин сучасного світогляду! Загальна площа Тауна від 100м2 до 107м2 Стан: "після будівельників" Ергономічне планування: Перший поверх: прихожа, гостьовий санвузол, кухня-вітальня з каміном і панорамними вікнами, що виходять на терасу. Другий поверх: дві окремі спальні кімнати та простора ванна. А вже третій поверх має вільне планування для Ваших мрій... мансардні вікна з видом на небо і зорі надають йому особливого затишку! ПОДАРУНОК кожному Власнику Таунхауса це Дизайн-проект вартістю 3000 доларів США, де вже прораховано кількість квадратних метрів плитки та ламінату на підлогу і стіни, всі розетки, крани, меблі, двері з маркуванням, специфікацією і конкретною назвою! При будівництві використано матеріали, що відповідають нормам енергозбереження та ДСТУ! Несучі стіни з червоної цегли та утепленні мінеральною ватою, перекриття - залізобетонні плити, бетонні міжповерхові сходи, роботи виконувались перевіреними будівельниками міста Черкаси. Купуючи Таун в ЖК "Біля Соснового бору" Ви маєте комфортне життя в місті, в той же час насолоджуючись шумом дерев та співом птахів. Адже в радіусі 5 хвилин пішого ходу є супермаркет, зупинка, аптека, ресторан, автомийка, поліклініка, заповідна територія лісу з віковими дубами і соснами, а за 10 хвилин можна вже відпочивати на березі Дніпра!
Активно
Опубліковано 15.01.2026

Квартира на землі м.Черкаси р-н Соснівка - ТАУНХАУС!

85 000 $
Черкаси, Дахнівка, Соснівка

Схожі оголошення

+38 098 029 03 43 +38 093 029 03 43
×

Вхід адміна