Характеристики

Тип об'єкту: Вторинний ринок
Тип будинку: Житловий фонд від 2021 р.
Кімнат: 2
Поверх: 6 з 25
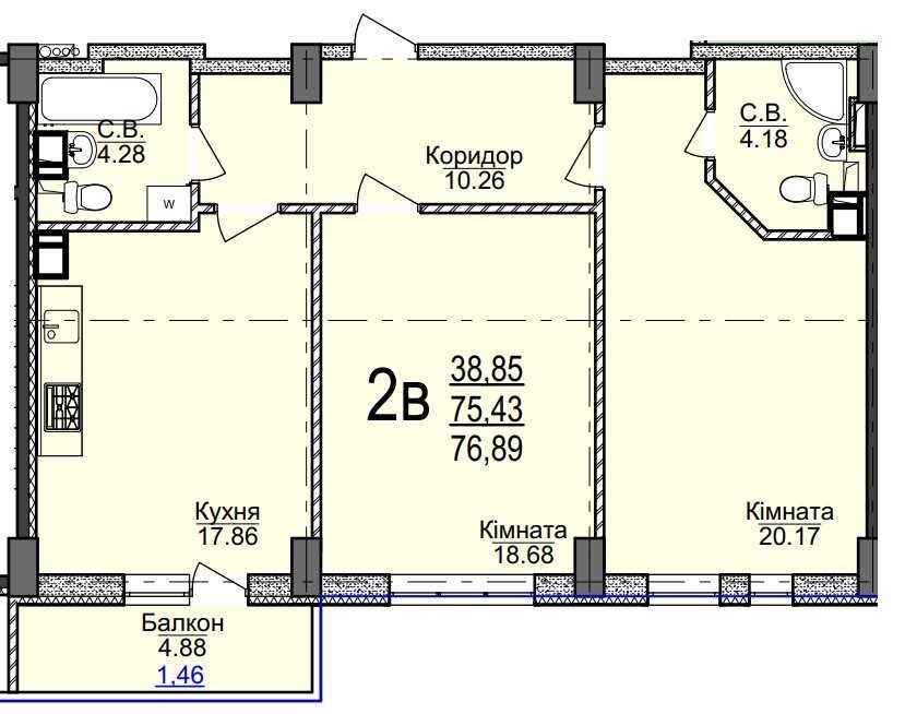
Загальна площа: 76.89 м²
Площа кухні: 17.86 м²
Ділянка: сот.
Тип стін: Монолітний
Опалення: Інше
Ремонт: Після будівельників
Планування: Роздільна
Комунікації: Асфальтована дорога, Центральна каналізація, Електрика, Вивіз відходів, Центральний водопровід

Опис

Пропонуємо до продажу 2к квартиру в центрі міста по бул. Шевченка, 202 в ЖК СВЯТОТРОЇЦЬКИЙ. Ціна вказана з урахуванням 100% оплати. Квартира: - загальна площа 76,89 кв.м. - тип квартири - 2В - стан квартири після будівельників - висота стелі 2,75 м. - 6 поверх Краєвид у двір. Будинок: - утеплений 10 см. мін.ватою - 2 грузових ліфти - оглядовий майданчик на даху для жителів будинку Місцерозташування: - центр міста - кафе - ресторани - школа - парк - ТРЦ Варіанти оплати: - розтермінування від забудовника: 30% перший внесок, решта на 6 місяців. Ціна вказана з урахуванням 100% оплати. Маєте питання або хочете переглянути квартиру вживу - телефонуйте! Черкаси, бул. Шевченка, 352. Графік роботи: ПН-ПТ з 10:00 до 17:00 (також можливий запис у зручний для Вас час за попередньою домовленістю).
Активно
Опубліковано 05.02.2026

Продам 2к квартиру ЖК СВЯТОТРОЇЦЬКИЙ | бул. Шевченка, 202 |

5 745 570 $
Черкаси, К-р Мир, Центр

Схожі оголошення

+38 098 029 03 43 +38 093 029 03 43
×

Вхід адміна