Характеристики

Тип об'єкту: Вторинний ринок
Тип будинку: Житловий фонд від 2021 р.
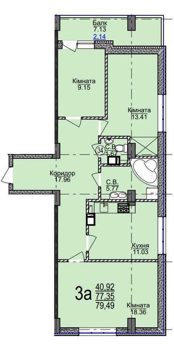
Кімнат: 3
Поверх: 6 з 25
Загальна площа: 79.49 м²
Площа кухні: 11.03 м²
Ділянка: сот.
Тип стін: Монолітний
Опалення: Інше
Ремонт: Після будівельників
Меблювання: Ні
Планування: Роздільна
Комунікації: Асфальтована дорога, Центральна каналізація, Електрика, Вивіз відходів, Центральний водопровід

Опис

Пропонуємо до продажу 3к квартиру в центрі міста по бул. Шевченка, 202 в ЖК СВЯТОТРОЇЦЬКИЙ. Квартира: - загальна площа 79,49 кв.м. - тип квартири - 3А - стан квартири після будівельників - 6 поверх Краєвид на бул. Шевченка, двір, місто ( на 3 сторони). Будинок: - утеплений 10 см. мін.ватою - 2 грузових ліфти - оглядовий майданчик на даху для жителів будинку Місцерозташування: - центр міста - кафе - ресторани - школа - парк - ТРЦ Варіанти оплати: - розтермінування від забудовника: 30% перший внесок, решта на 6 місяців. Ціна вказана з урахуванням 100% оплати. Маєте питання або хочете переглянути квартиру вживу - телефонуйте! Черкаси, бул. Шевченка, 352. Графік роботи: ПН-ПТ з 10:00 до 17:00 (також можливий запис у зручний для Вас час за попередньою домовленістю).
Активно
Опубліковано 05.02.2026

Продам 3к квартиру ЖК СВЯТОТРОЇЦЬКИЙ | бул. Шевченка, 202 |

6 273 613 $
Черкаси, К-р Мир, Центр

Схожі оголошення

+38 098 029 03 43 +38 093 029 03 43
×

Вхід адміна