Характеристики

Тип об'єкту: Вторинний ринок
Поверх: 3 з 3
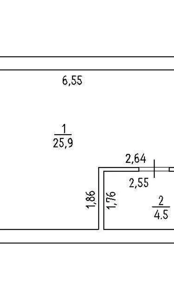
Загальна площа: 30.4 м²
Площа кухні: 5 м²

Опис

Квартира-студія з суміжним санвузлом. Зроблено ремонт. До квартири підведено 15 кВт напруги, встановлено двотарифний лічильник день-ніч. Квартира має централізоване опалення. Квартира продається з побутовою технікою: холодильником, електроплитою, електрокотлом, пральною машиною, бойлером, кондиціонером та рекуператором. Залишаються мякий куток, шафа-купе, вітальня, стіл та стільці. Квартира розташована у зручному районі з розвиненою інфраструктурою. Усе поряд: супермаркети, банки, ринок, зупинки громадського транспорту. Наявні вільні паркувальні місця для автомобілів.
Активно
Опубліковано 21.01.2026

Продаж 1 кімнатної квартири на Зеленій

36 000 $
Черкаси, невідомо

Схожі оголошення

+38 098 029 03 43 +38 093 029 03 43
×

Вхід адміна