ШІ-агент Чемпіон

Приватний Асистент

Будь ласка, увійдіть в систему, щоб розпочати спілкування з ШІ-рієлтором та отримати персоналізовану консультацію.

ШІ друкує

Характеристики

Тип об'єкту: Новобудова
Тип будинку: Квартира
Кімнат: 1
Поверх: 3 з 10
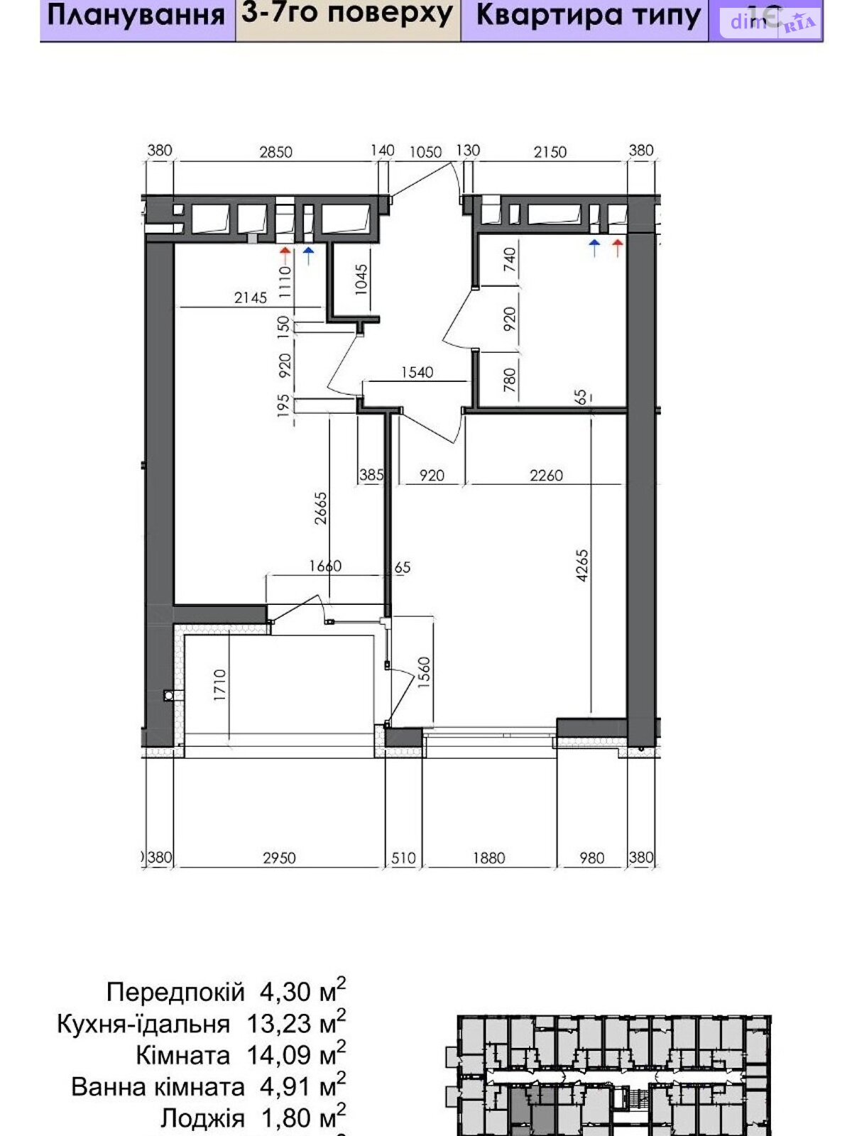
Загальна площа: 39.19 м²
Тип стін: цегла
Опалення: індивідуальне газове
Меблювання: немає
Рік побудови / здачі: Здача в 2026
Комфорт: лічильник на електрику, лічильник на газ, лічильник на воду, електрика, газ, інтернет

Опис

Знаходиться у ЖК Пастерівський. На 3 поверсі. Вікна у двір. Загальна площа: 39.19 кв.м. Здача влітку 2026 року. Індивідуальне газове опалення. Індивідуальні лічильники: газ, електрика, вода. Двоконтурний котел. Вихід на лоджію і з кімнати і з кухні. Будинок закритого типу. , продаж , по переуступці. Але залишилося 10днів, так як потрібно оформлювати або на себе, або на нового .
Активно
Опубліковано 12.04.2026

Продаж 1к квартири 39.19 кв. м на вул. Маламужа Олександра

35 500 $
Черкаси, Водоканал-Невського

Схожі оголошення

+38 098 029 03 43 +38 093 029 03 43
×

Вхід адміна