Характеристики

Тип будинку: Дім
Кімнат: 4
Поверховість: 2 пов.
Загальна площа: 131 м²
Ділянка: 2.38 сот.
Тип стін: газобетон

Опис

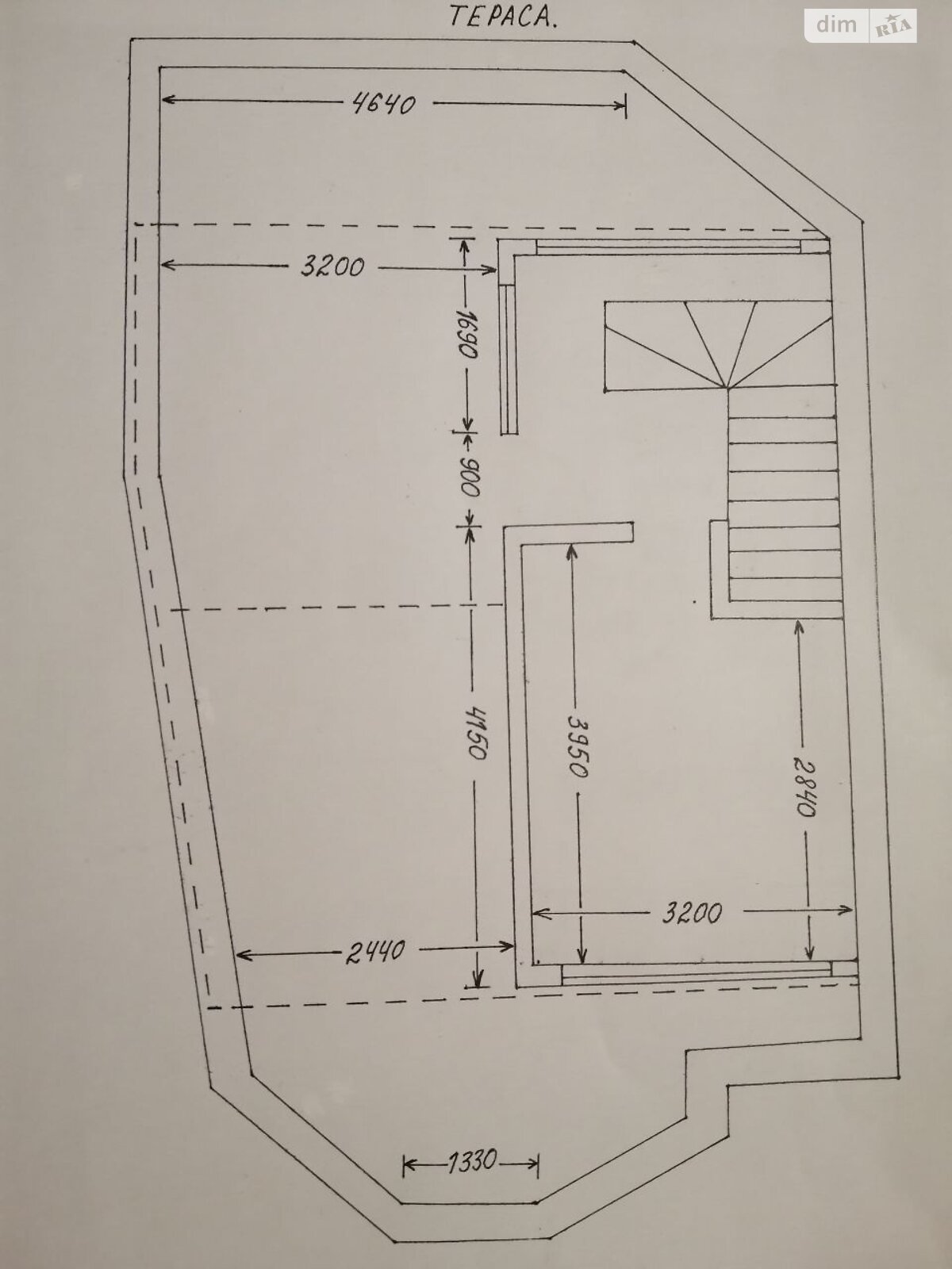
Продам будинок, м.Черкаси, центр, р-н "Казбету", вул. Праведниці Шулежко (раніше вул. Пушкіна). Будинок новий, 2021 року, без оздоблення. Загальна площа будинку 131 м², додатково 37 м² - відкрита тераса на мансардному поверсі. Чотири кімнати, два санвузли, житлова площа 85 м², кухня 16, 8 м². Ділянка приватизована 2, 38 соток. Підключено електрику, центральний водопровід та каналізацію. Газ на ділянці. Стіни з газобетону, перекриття залізобетонне монолітне, м`яка покрівля. Тихе та дуже зручне місце розташування, розвинена інфраструктура. Чудовий вид на центр міста та р. Дніпро, затишний внутрішній дворик. Вартість 87999$. Тел. XXXXXXXXXX, Юрій. 4 кімнати 3 поверхи Мансардний поверх з відкритою терасою Загальна площа 131 м² (додатково 37 м² тераса) Житлова площа 85 м² Кухня 16, 8 м² Ділянка 2, 38 соток, приватизована Центральний водопровід та каналізація Підключена електромережа Газ на ділянці Стіни з газобетону Перекриття залізобетонне монолітне Покрівля бітумна черепиця
Активно
Опубліковано 18.11.2025

Продаж 2 поверхового будинку з ділянкою на 2.38 сотки, 131 кв. м, 4 кімнати, на вул. Праведниці Шулежко

88 000 $
Черкаси, Казбет, Центр

Схожі оголошення

+38 098 029 03 43 +38 093 029 03 43
×

Вхід адміна