Характеристики

Тип об'єкту: Вторинний ринок
Тип будинку: Житловий фонд 2011-2020-і
Кімнат: 3
Поверх: 1 з 10
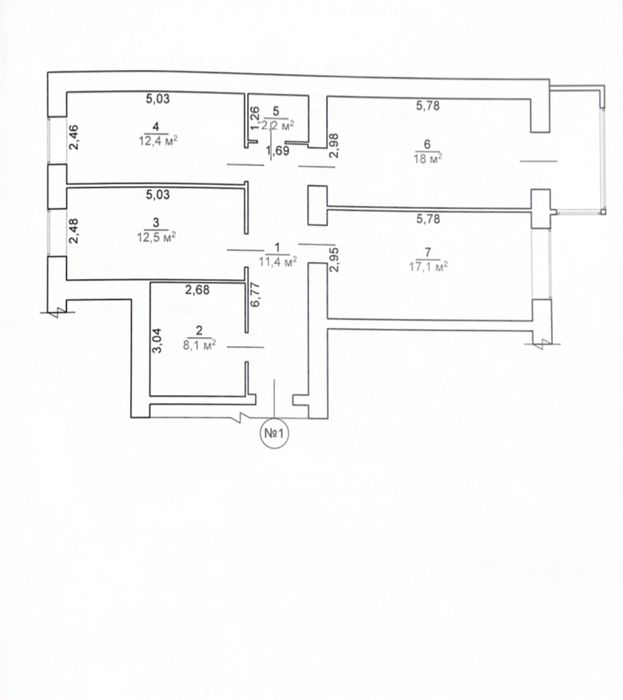
Загальна площа: 85 м²
Площа кухні: 18 м²
Ділянка: сот.
Тип стін: Цегляний
Опалення: Індивідуальне електро
Ремонт: Після будівельників
Планування: Роздільна

Опис

Пропонуємо придбати простору 3-кімнатну квартиру в сучасному обжитому ЖК Форест, який знаходиться в районі Літака. Будинок має закриту велику територію, цілодобову охорону, велику парковку, яскравий облаштований дитячий майданчик та доглянуту прибудинкову територію. Стан квартири - після будівельників , але частково розведена електрика , в квартирі є не несучі стіни, тому можна виконати перепланування під свій проект ремонту. Телефонуйте , покажем в зручний час.
Активно
Опубліковано 05.02.2026

Простора 3-кімнатна

63 000 $
Черкаси, Літак

Схожі оголошення

+38 098 029 03 43 +38 093 029 03 43
×

Вхід адміна