Характеристики

Тип будинку: Таунхаус
Поверховість: 2 пов.
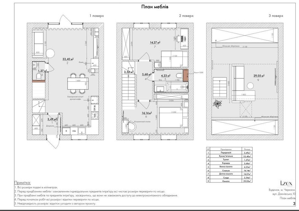
Загальна площа: 101 м²
Площа кухні: 0 м²
Ділянка: 1 сот.
Тип стін: Цегляний
Опалення: Індивідуальне електро
Ремонт: Після будівельників
Меблювання: Ні
Комунікації: Асфальтована дорога, Центральна каналізація, Електрика, Вивіз відходів, Центральний водопровід

Опис

Продаж Таунхаусу в Житловому комплексі "Біля Соснового Бору",що вдало розташований в районі Соснівка, по вулиці Дахнівська 10, це біля ресторану "ЕДЕМ", та налічує всього дев'ять будиночків! Весь комплекс введено в експлуатацію і отримано всі документи, отже купуючи Таун у нас - Ви одразу отримуєте ключі від власного будинку! Працюємо з ЄОСЕЛЯ та іншими іпотечними, державними програмами фінансування покупки житла! Власна закрита територія розташована в оточенні соснових дерев! Для безпеки у нас встановлено відеоспостереження, а для відпочинку дитячий та спортивний майданчики. У дворі простора загальна зона релаксу для сімейних зустрічей і прогулянок на свіжому повітрі. Завершено благоустрій комплексу: паркові лавочки, тротуари, парковка і проїзди вимощені плиткою, ландшафтний дизайн і зелені насадження, автоматичні ворота на заїзд та виїзд. Загальна площа будинку: 100,4 кв.м. На першому поверсі: прихожа, санвузол, кухня-вітальня з панорамними вікнами та виходом на терасу. На другому поверсі є простора ванна, та дві окремі спальні кімнати. А вже третій поверх має вільне планування для Ваших мрій... мансардні вікна з видом на небо і зорі надають йому особливого затишку! + У Вас є можливість встановлення каміна, сонячних панелей або елементарного генератора! + Центральні комунікації: вода, каналізація, електрика 15 кВа, інтернет Маклаут - вже підключені! + Дизайн-проект вартістю сто двадцять тисяч гривень - в подарунок!!! + Всіх сусідів Ви будете знати особисто, оскільки в ЖК всього 9 таунів і пидбираємо ми родини, які цінують сучасний стиль життя в гармонії з природою! При будівництві використано якісні матеріали, що відповідають нормам енергозбереження! Несучі стіни з червоної цегли та утепленні мінеральною ватою, перекриття - залізобетонні плити, облаштовано бетонні міжповерхові сходи. Є власний затишний дворик та парковка з можливістю зарядки електрички або під'єднання генератора. Купуючи Таун в ЖК "Біля Соснового бору" Ви маєте комфортне життя в місті, в той же час насолоджуючись шумом дерев та співом птахів. Адже в радіусі 5 хвилин пішого ходу є супермаркет, зупинка, аптека, ресторан, автомийка, поліклініка, заповідна територія лісу з віковими дубами і соснами, а за 10 хвилин можна вже відпочивати на березі Дніпра! Перегляд за попереднім записом у відділі продажу.
Активно
Опубліковано 19.02.2026

Таунхаус р-н Соснівка м.Черкаси

85 000 $
Черкаси, Дахнівка, Соснівка

Схожі оголошення

+38 098 029 03 43 +38 093 029 03 43
×

Вхід адміна