Характеристики

Поверховість: 2 пов.
Загальна площа: 111 м²
Ділянка: 1.72 сот.

Опис

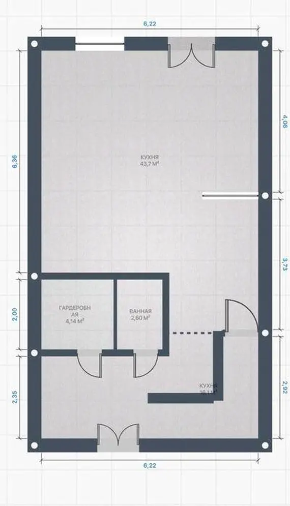
Будинок має функціональне планування: велика кухня-студія, 2 спальні, кабінет, гардеробна та 2 санвузли. Стан ремонту - під чистову обробку, стіни та підлога підготовлені до фінішного оздоблення. Є можливість найняти бригаду для виконання робіт та готовий дизайн-проєкт. Розведено систему «тепла підлога», каналізацію та водопостачання. Встановлено інсталяції. Будинок має 12 кВт електрики з двотарифним лічильником. Є можливість провести газ. Система опалення - індивідуальне електричне. Таунхаус розташований у тихому центрі. Має просторий двір квадратної форми. Добрі сусіди. Асфальтована вулиця, зручний сходовий спуск до Дніпра. Поруч зупинки громадського транспорту. Зручний сходовий спуск до Дніпра. Таунхаус має вид на Дніпро. Є гардеробна. Система «тепла підлога» розведена по всьому будинку.
Активно
Опубліковано 17.06.2025

Таунхауз, Казбет. Дніпро 3 хвилини

87 300 $
Черкаси, Казбет

Схожі оголошення

+38 098 029 03 43 +38 093 029 03 43
×

Вхід адміна